Magnifique maison loft atypique avec terrasses

785 000 €

  • 8 Pièces
  • 4 chambres
  • 1 salle de bains
  • 1 salle d'eau
  • 249 m²
Exclusivité

Rue D'Ermont - 95210 Saint-Gratien

Magnifique maison loft atypique avec terrasses

En plein cœur du quartier de la Mairie, découvrez cette maison loft atypique de 249 m² (218 m² habitables), entièrement rénovée avec des prestations haut de gamme, au calme et à l'abri des regards.
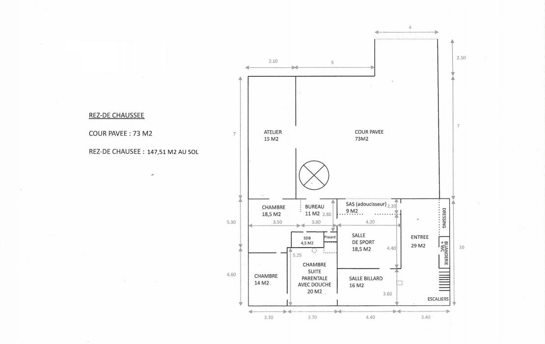
Accessible par deux portes cochères, il s'ouvre sur une cour pavée de 70 m² pouvant accueillir 3 voitures et deux terrasses suspendues totalisant 34 m².

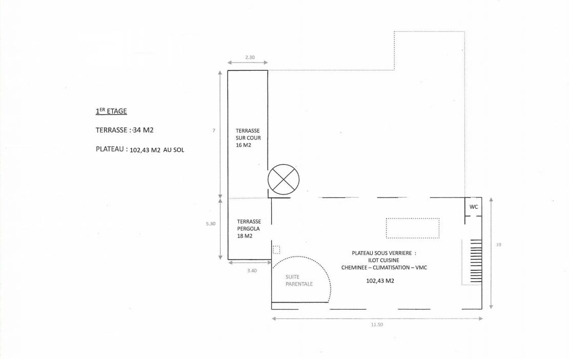
Le vaste plateau de vie (102 m² et 3,58 m de hauteur sous plafond) offre un espace décloisonné et lumineux : cuisine avec îlot central, salle à manger, salon avec poêle Godin, coin bureau et accès direct aux 2 terrasses.

À l'étage inférieur (147 m²) : 4 chambres dont une suite parentale, salle de bains et salle d'eau, dressing, buanderie, salle de sport, billard et un bureau.

Climatisation réversible (remplacée en décembre 2025 améliorant le DPE en C), arches métalliques type Eiffel, verrière, adoucisseur d'eau, Velux à ouvertures télécommandées, nombreux rangements optimisés.

  • 10 min à pied RER C & Gare d'Ermont-Eaubonne (lignes H/J – Paris 20 min)

  • Écoles, commerces et centre-ville à proximité

  • Lac d'Enghien à 10 min, accès rapide A15/A86, Forêt de Montmorency à 6 km

Honoraires à la charge de l'acquéreur.

Surface 249 m²
Pièces 8
Chambre 4
Salle de bains 1
Salle d'eau 1
Terrasse 2
Parking Oui
Local à vélo Oui
Interphone Oui
Alarme Oui
Référence 00107
Consommation énergétique (DPE)
Logement économeLogement
A
214
B
214
C
214
D
214
E
214
F
214
G
214
Logement énergivore
Valeur exprimée en kWhEP/m².an
Émissions de gaz a effet serre (GES)
Faible émission de GESLogement
A
7
B
7
C
7
D
7
E
7
F
7
G
7
Forte émission de GES
Valeur exprimée en kgeqCO2/m².an

Estimer mon bien